Cara Menggunakan Denah Lantai Real Estat Dalam Tur Virtual Untuk Memikat Klien [2023]
Diterbitkan: 2023-08-26Saat menjual rumah, Anda akan melihat bahwa salah satu alasan utama pembeli Anda menolak rumah adalah karena cara properti itu direncanakan atau dibangun.
Bagi banyak klien, penting bagi mereka untuk dapat menemukan rumah yang menyerupai denah rumah yang mereka inginkan.
Oleh karena itu, jika Anda menggunakan tur virtual untuk memamerkan properti, Anda harus mempertimbangkan untuk menyertakan denah lantai real estat dalam tur tersebut.
Ini tidak hanya membuat tur menjadi lebih menarik tetapi juga membantu menghilangkan kebingungan tentang arsitektur rumah. Selain itu, Anda akan mendapatkan beberapa manfaat tambahan yang akan membantu Anda lebih mengesankan klien.
Hari ini, Anda akan mempelajari cara menambahkan peta lantai ke tur virtual Anda untuk meningkatkan pengalaman pengunjung Anda secara keseluruhan.
Dalam artikel ini, Anda akan belajar,
- Manfaat utama menggunakan denah rumah dengan tur virtual,
- cara menyematkan denah lantai real estat ke dalam tur virtual properti Anda,
- contoh denah lantai yang bagus dengan tur virtual.
Mari kita mulai.
Manfaat Menggunakan Denah Lantai Real Estat Dengan Tur Virtual
Denah lantai virtual saat ini akan memberikan calon pembeli pengalaman yang mendalam dan interaktif untuk menjelajahi properti dan mendapatkan pemahaman lebih dalam tentang tata letaknya. Dan jika Anda dapat menggabungkan tur virtual dengan denah lantai, pengalaman tersebut akan dibawa ke level berikutnya.
Berikut adalah beberapa manfaat utama menggunakan denah lantai real estat dengan tur virtual.
1. Rencana & Tata Letak Properti yang Jelas Untuk Pengambilan Keputusan yang Lebih Baik
Manfaat utama menggunakan denah lantai real estat adalah untuk memastikan pembeli mendapatkan gambaran yang jelas tentang tata letak rumah.
Biasanya, ketika Anda memiliki gambar atau video, Anda hanya melihat rumah dari sudut tertentu dan tidak dapat membayangkan bagaimana keadaan sebenarnya.
Ketika berbicara tentang tur virtual, ya, Anda mendapatkan gambaran yang hampir sempurna tentang pemandangan yang Anda lihat. Namun sekali lagi, Anda tidak dapat secara akurat menebak arah dan tata letak bagaimana setiap adegan terhubung satu sama lain dalam kehidupan nyata.
Denah lantai memecahkan masalah ini. Saat mengikuti tur, jika seseorang dapat melihat sekilas denah lantai interaktif dan memahami di mana dia berada di dalam rumah, pembeli akan lebih mudah memutuskan apakah ini yang mereka cari.

Misalnya, sebuah keluarga yang sedang mempertimbangkan sebuah properti dapat memvisualisasikan dengan lebih baik apakah kamar tidur terletak berdekatan atau terpisah, dapur terletak di lokasi yang strategis, dan terdapat pemisahan logis antara ruang pribadi dan ruang komunal.
Oleh karena itu, ini akan membantu pembeli membuat keputusan dengan lebih percaya diri. Dan kecil kemungkinannya Anda akan ditolak kesepakatannya karena tata letak rumahnya.
2. Memetakan Tempat Penting Dalam Tur Virtual Anda
Di peta lantai, Anda dapat memberi nama ruangan dan area yang tersedia dalam tur. Anda dapat meninggalkan petunjuk untuk menunjukkan tempat pengunjung akan mengamati pemandangan.
Anda juga dapat mengontraskan warna pada area yang ingin dikunjungi pengunjung, misalnya keistimewaan properti.
Bisa jadi ruang makan, atau mungkin area kolam renang, atau bahkan balkon untuk mendapatkan pemandangan luar yang menenangkan. Pendekatan ini akan bekerja dengan sangat baik untuk rumah berperabotan atau rumah mewah.

Jadi, pada dasarnya, Anda dapat menggunakan ini sebagai cara lain untuk terhubung dengan calon pembeli.
3. Mempermudah Navigasi Dengan Klik Untuk Melihat Pemandangan
Peta lantai modern dalam tur virtual memungkinkan Anda menambahkan hotspot di peta, yang dapat diklik orang untuk mengunjungi lokasi tersebut secara langsung.

Hal ini membantu menarik pembeli yang lebih mementingkan ruangan tertentu di rumah.
Misalnya, banyak orang ingin memastikan mereka mendapatkan dapur yang luas terlebih dahulu. Oleh karena itu, Anda dapat mengizinkan mereka mengunjungi dapur hanya dengan mengklik peta.
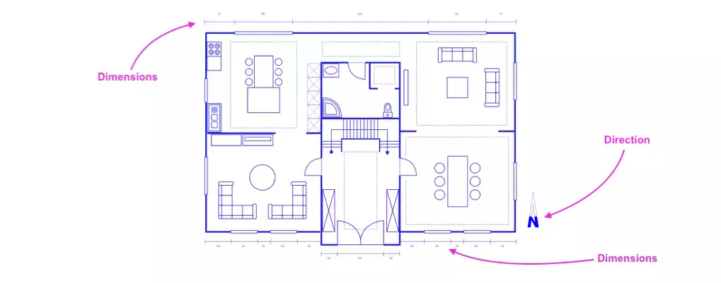
4. Hindari Kesalahpahaman Dengan Dimensi & Arah Ruangan
Virtual memang menciptakan lingkungan yang sangat realistis bagi pembeli, namun masih belum menjawab beberapa pertanyaan penting yang mungkin dimiliki pembeli.

Misalnya, pembeli mungkin bertanya-tanya tentang dimensi atau ukuran ruangan.
Itu adalah sesuatu yang dapat Anda liput dalam denah lantai real estat. Anda dapat dengan mudah menambahkan pengukuran setiap sisi ruangan/pemandangan pada peta, sehingga menghilangkan kebingungan tersebut.
Petunjuk arah dapat berupa informasi lain yang dapat Anda sertakan dalam denah lantai.
5. Tentukan Keaslian Listing Anda
Penggunaan denah lantai real estat dalam tur virtual Anda akan bertindak sebagai pemicu psikologis dan membantu Anda mendapatkan otoritas.
Memiliki peta lantai akan menciptakan rasa keaslian. Orang-orang akan percaya bahwa Anda lebih dapat dipercaya dengan listingan tersebut karena Anda bahkan memiliki akses ke denah lantai.
Ini akan memudahkan orang untuk memilih Anda dibandingkan pesaing Anda.
Tip Pro: Anda dapat mengumpulkan denah lantai dari pemiliknya atau meminta seseorang memeriksa rumah dan menyiapkannya untuk Anda. Jangan gunakan denah lantai palsu. Ini justru akan membuat Anda kehilangan klien potensial.

Cara Menyematkan Denah Lantai Real Estat ke Tur Virtual Anda
Kemampuan untuk menambahkan denah lantai real estat ke tur virtual Anda akan sangat bergantung pada alat yang Anda gunakan untuk membuat tur virtual.
Beberapa alat memiliki fitur ini bawaan, sementara alat lainnya, Anda mungkin perlu menyesuaikannya ke dalam tur atau berkompromi dan menggunakan peta lantai sebagai gambar di bawah tur virtual di halaman web.
Kami sangat menyarankan Anda memilih perangkat lunak tur virtual yang memiliki fitur denah lantai interaktif yang memungkinkan Anda menghubungkan peta ke tur virtual melalui hotspot dan menunjukkan lokasi pemandangan yang sedang dilihat di peta.
Di WordPress, Anda akan menemukan WPVR, yang memungkinkan Anda membuat dan menyematkan tur virtual berkualitas tinggi di situs web Anda, bersama dengan denah lantai interaktif.
Inilah cara Anda membuat tur virtual bersama dengan denah lantai real estat menggunakan WPVR.
1. Buat Tur Virtual Menggunakan WPVR
Pertama, Anda perlu mengunggah gambar panorama 360, yang akan diubah WPVR menjadi lingkungan virtual.
Selanjutnya, hubungkan adegan-adegan tersebut satu sama lain untuk menjadikannya tur rumah yang lengkap.
Dan terakhir, sesuaikan tur dengan lebih banyak detail seperti informasi perusahaan, keterangan alat, detail tambahan tentang rumah, dan formulir pemesanan.
~ Berikut panduan sederhana membuat Virtual Tour Real Estate Untuk Meningkatkan Penjualan Properti ~
2. Aktifkan & Unggah Denah Lantai Real Estat
Setelah tur Anda siap, saatnya menambahkan denah rumah tur virtual.
Pertama, buka pengaturan WPVR dan aktifkan fitur denah lantai.

Selanjutnya, unggah peta lantai real estat.

Kemudian, atur hotspot dan sambungkan ke adegan terkait dalam tur.

Berikut panduan video jika Anda memerlukan bantuan lebih lanjut,
3. Sematkan Tur Virtual Anda Di Situs Web
Sekarang setelah tur virtual denah lantai Anda siap, Anda dapat dengan mudah menyematkannya di halaman mana pun di situs web Anda menggunakan kode pendek atau widget di salah satu pembuat halaman yang didukung.
Misalnya, jika Anda menggunakan Elementor, Anda dapat menggunakan widget WPVR dari Elementor untuk menempatkan tur di halaman, yang dapat Anda tautkan ke halaman daftar rumah terkait untuk dijual.
~Inilah cara Anda dapat dengan mudah menyematkan tur virtual WPVR di mana saja di situs WordPress Anda.
Contoh Denah Lantai Dengan Tur Virtual
1. Denah Lantai Interaktif oleh WPVR
Berikut adalah contoh tur virtual dengan denah real estate yang dibuat menggunakan WPVR. Ikuti turnya dan jelajahi betapa menakjubkannya tur virtual ini dan betapa menariknya peta lantai interaktif ini.
2. Etalase Peta Properti oleh Zillow
Anda pasti pernah mendengar tentang Zillow. Begini cara mereka menyajikan peta lantai dengan tur virtual.

3. Denah Rumah Dasar Dengan Tur Virtual oleh Panoee

4. Tur Virtual Denah Lantai 3D oleh WayneHomes (dibuat menggunakan Matterport)

Yang ini agak unik (dan mahal). Ini pada dasarnya adalah efek rumah boneka dari Matterport, yang mungkin bukan sesuatu yang diinginkan sebagian besar agen penjual kecuali untuk rumah mewah yang sangat mahal.
Kesimpulan
Seperti yang Anda lihat, Anda mendapatkan banyak manfaat dari penggunaan denah lantai real estat bersama dengan tur virtual Anda, dan sangat mudah untuk disematkan.
Jadi lanjutkan dan mulai gunakan tur virtual dengan denah lantai dan yakinkan lebih banyak calon pembeli untuk mempertimbangkan membuat keputusan pembelian.
Jika Anda ingin menggunakan pembuat tur virtual andal yang andal, hemat biaya, dan memiliki fitur denah lantai interaktif berkualitas tinggi, maka WPVR akan menjadi pilihan yang tepat.
Coba gunakan WPVR hari ini dan mulailah membuat tur virtual yang lebih optimal untuk mengonversi klien.
